Например TDA7294

Форум РадиоКот • Просмотр темы - Как понять буквенно-цифровые обозначения в данной схеме?
Форум РадиоКот
Здесь можно немножко помяукать :)

Текущее время: Пт фев 06, 2026 07:40:02

Часовой пояс: UTC + 3 часа


ПРЯМО СЕЙЧАС:



Начать новую тему Ответить на тему  [ Сообщений: 14 ] 
Автор Сообщение
Не в сети
 Заголовок сообщения: Как понять буквенно-цифровые обозначения в данной схеме?
СообщениеДобавлено: Пт янв 17, 2014 17:09:57 
Вымогатель припоя

Карма: -6
Рейтинг сообщений: -47
Зарегистрирован: Чт июн 16, 2011 15:06:10
Сообщений: 507
Откуда: электрощитовая
Рейтинг сообщения: 0
Правильно ли я интерпретирую (согласно ГОСТ ГОСТ 2.710-81 ЕСКД) в данной схеме систему буквенно-цифровых обозначений:
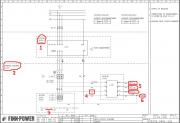
Изображение

Позиция №1:
Написано: "OPTION 1LV19 1LV84"
Как понимать обозначения "1LV19" и "1LV84" не знаю. Ну то что наличие функциональной группы опциональное - это мне понятно.

Позиция №2:
Написано: "CONTROL CABINET =1CC1"
Понимается как: Шкаф управления, устройство - "1СС1".

Позиция №3:
Написано: "301:1-21Е"
Понимается как: Номер группы чертежей - "301", лист в группе - "1", положение на листе в зоне - "21Е".

Позиция №4:
Написано: "25#"
Как это понимать не знаю. Номер кабеля?

Позиция №5:
Написано: "102:1-11А", "102:1-11В"
Понимается как: Номер группы чертежей - "102", лист в группе - "1", положение на листе в зоне - "11А". Номер группы чертежей - "102", лист в группе - "1", положение на листе в зоне - "11В".

Позиция №6:
Написано: "3-11В"
Понимается как: Номер группы чертежей - "как у данного", лист в группе - "3", положение на листе в зоне - "11В".

Обозначение "1_1Q1".
Понимается как: Тип устройства - "выключатель или разъединитель в силовых цепях", позиционный номер - "1", что значит - "1_1"?

_________________
даешь высокое напряжение


Вернуться наверх
 
Не в сети
 Заголовок сообщения: Re: Как понять буквенно-цифровые обозначения в данной схеме?
СообщениеДобавлено: Пт янв 17, 2014 17:32:04 
Друг Кота
Аватар пользователя

Карма: 175
Рейтинг сообщений: 7680
Зарегистрирован: Чт апр 04, 2013 12:46:59
Сообщений: 17234
Откуда: Тюмень
Рейтинг сообщения: 0
Не нужно расшифровывать обозначения, созданные с использованием одного стандарта с помощью совсем другого стандарта. Другими словами - не стоит опираться на ГОСТ при расшифровке обозначений на зарубежной схеме...

_________________
Общением на форуме подпитываю свою эгоистичную, склонную к самолюбованию сущность.


Вернуться наверх
 
Не в сети
 Заголовок сообщения: Re: Как понять буквенно-цифровые обозначения в данной схеме?
СообщениеДобавлено: Пт янв 17, 2014 17:33:19 
Вымогатель припоя

Карма: -6
Рейтинг сообщений: -47
Зарегистрирован: Чт июн 16, 2011 15:06:10
Сообщений: 507
Откуда: электрощитовая
Рейтинг сообщения: 0
Slabovik писал(а):
Другими словами - не стоит опираться на ГОСТ при расшифровке обозначений на зарубежной схеме...

Может подскажите, на какие стандарты тогда нужно опираться?

_________________
даешь высокое напряжение


Вернуться наверх
 
Не в сети
 Заголовок сообщения: Re: Как понять буквенно-цифровые обозначения в данной схеме?
СообщениеДобавлено: Пт янв 17, 2014 17:39:19 
Друг Кота
Аватар пользователя

Карма: 175
Рейтинг сообщений: 7680
Зарегистрирован: Чт апр 04, 2013 12:46:59
Сообщений: 17234
Откуда: Тюмень
Рейтинг сообщения: 0
Это типа "засыпать" решили? Очевидно, на те, которые применяли в той конторе, откуда происходит данный чертёж. Мне данная информация недоступна. Однако то, что чертёж выполнен не по ГОСТ - однозначно...

_________________
Общением на форуме подпитываю свою эгоистичную, склонную к самолюбованию сущность.


Вернуться наверх
 
Эиком - электронные компоненты и радиодетали
Не в сети
 Заголовок сообщения: Re: Как понять буквенно-цифровые обозначения в данной схеме?
СообщениеДобавлено: Пт янв 17, 2014 17:41:53 
Вымогатель припоя

Карма: -6
Рейтинг сообщений: -47
Зарегистрирован: Чт июн 16, 2011 15:06:10
Сообщений: 507
Откуда: электрощитовая
Рейтинг сообщения: 0
Slabovik писал(а):
Очевидно, на те, которые применяли в той конторе, откуда происходит данный чертёж.

Следуя логике, для чтения данного чертежа, необходимо связаться с представителями завода-производителя и запросить у них перечень нормативно-технической документации, применяемой при разработке КД на их продукцию?

_________________
даешь высокое напряжение


Вернуться наверх
 
Не в сети
 Заголовок сообщения: Re: Как понять буквенно-цифровые обозначения в данной схеме?
СообщениеДобавлено: Пт янв 17, 2014 18:09:27 
Сверлит текстолит когтями
Аватар пользователя

Карма: 6
Рейтинг сообщений: 23
Зарегистрирован: Пн фев 07, 2011 16:19:33
Сообщений: 1178
Рейтинг сообщения: 0
Vova777 писал(а):
необходимо связаться с представителями завода-производителя и запросить у них перечень нормативно-технической документации

Вряд ли они Вам это скажут. По опыту чтения таких чертежей скажу следующее:
Позиция №2,3,5,6 - похоже на правду.
Позиция №1,2 то если документация полная всегда на последних страницах спецификация. Где указано под каким кодом (маркировкой ) идут элементы и фирма производителя. По-крайней мере делают так немецкие и бельгийские фирмы производители . У них очень четко прослеживаются ссылки и адресация . Вверху листа у Вас указано место положение на данном листе (номер листа должен стоять в правом нижнем углу). Кстати общеевропейских стандартов в технической документации за свою практику что-то не заметил. У всех техдокументация выглядит по-разному. Но всегда есть ссылки по листам, группам,местоположению и спецификация.


Вернуться наверх
 
Не в сети
 Заголовок сообщения: Re: Как понять буквенно-цифровые обозначения в данной схеме?
СообщениеДобавлено: Пт янв 17, 2014 18:17:11 
Вымогатель припоя

Карма: -6
Рейтинг сообщений: -47
Зарегистрирован: Чт июн 16, 2011 15:06:10
Сообщений: 507
Откуда: электрощитовая
Рейтинг сообщения: 0
ageeff писал(а):
если документация полная всегда на последних страницах спецификация.

Как бы сказать, мне важно понять сам принцип, как они проставляют свои обозначения. Мы на заводе читать-то научились, а в сам принцип въехать не можем... Чтобы понять, что я имею ввиду, посмотрите ГОСТ 2.710-81 ЕСКД. Этим руководствуемся мы у себя России и СНГ. А у них есть что-то подобное, чтобы понять, что значит их система обозначения?

ageeff писал(а):
По-крайней мере делают так немецкие и бельгийские фирмы производители.

Немцы вообще "рулят" в мире, по производству технической продукции.

ageeff писал(а):
У всех техдокументация выглядит по-разному. Но всегда есть ссылки по листам, группам,местоположению и спецификация.

Да, Вы правы. Мы у себя все это используем при чтении.

_________________
даешь высокое напряжение


Вернуться наверх
 
Не в сети
 Заголовок сообщения: Re: Как понять буквенно-цифровые обозначения в данной схеме?
СообщениеДобавлено: Пт янв 17, 2014 18:24:54 
Сверлит текстолит когтями
Аватар пользователя

Карма: 6
Рейтинг сообщений: 23
Зарегистрирован: Пн фев 07, 2011 16:19:33
Сообщений: 1178
Рейтинг сообщения: 0
Vova777 писал(а):
мне важно понять сам принцип, как они проставляют свои обозначения.

Мне трудно сказать чем они руководствуются. Но прослеживается принцип (я говорю только про известные мне производителей ) сокращенного названия элемента к примеру SP(switch pressure) датчик давления , в нашем ГОСТе также. Раз Вы научились читать их чертежи , почему так важно знать как они проставляют названия? Просто на работе автоматом читаешь даже не задумываешься , бывает путанная документация , а лучше -то нет .


Вернуться наверх
 
Не в сети
 Заголовок сообщения: Re: Как понять буквенно-цифровые обозначения в данной схеме?
СообщениеДобавлено: Пт янв 17, 2014 18:30:49 
Вымогатель припоя

Карма: -6
Рейтинг сообщений: -47
Зарегистрирован: Чт июн 16, 2011 15:06:10
Сообщений: 507
Откуда: электрощитовая
Рейтинг сообщения: 0
ageeff писал(а):
прослеживается принцип (я говорю только про известные мне производителей ) сокращенного названия элемента к примеру SP(switch pressure) датчик давления , в нашем ГОСТе также.


Да, я читал даже ГОСТ про это, тоже замечал. Вообще, там у них почти все идентично с нашими ГОСТ-ами. Нам важно именно как они формируют свою структуру обозначений, например "=устройство -компонент :вывод"?

Было бы желательно, если бы Вы пояснили по позициям №1, №4 (№4 - я думаю, что так они указывают сечение проводов, потому что везде, где встречается данное обозначение, оно кратно таблице сечений из ПУЭ), и в обозначение "1_1Q1", что значит "1_1".

_________________
даешь высокое напряжение


Вернуться наверх
 
Не в сети
 Заголовок сообщения: Re: Как понять буквенно-цифровые обозначения в данной схеме?
СообщениеДобавлено: Пт янв 17, 2014 18:34:06 
Сверлит текстолит когтями
Аватар пользователя

Карма: 6
Рейтинг сообщений: 23
Зарегистрирован: Пн фев 07, 2011 16:19:33
Сообщений: 1178
Рейтинг сообщения: 0
Vova777 писал(а):
обозначение "1_1Q1", что значит "1_1".

Возможно это привязка по листам
Было-бы проще если Вы привели ещё часть схем. А то получается маленькая неувязочка - внизу указаны контакты по адресации они ссылаются на этот же лист , а их там нет . Приходится сильно увеличивать картинку и непонятно что написано - я прочитал 101:1-21F - правильно?
В нижнем правом углу непонятно что написано - 1/1 или 1/3 (первый лист и 1 листов на схеме 101,либо первый лист всего листов 3 )


Вернуться наверх
 
Не в сети
 Заголовок сообщения: Re: Как понять буквенно-цифровые обозначения в данной схеме?
СообщениеДобавлено: Пт янв 17, 2014 18:45:09 
Вымогатель припоя

Карма: -6
Рейтинг сообщений: -47
Зарегистрирован: Чт июн 16, 2011 15:06:10
Сообщений: 507
Откуда: электрощитовая
Рейтинг сообщения: 0
Дайте вашу почту, куда в PDF все схемы скинуть, не могу сюда загрузить, больше 2 Мб, весит 2.5 Мб - а все, уже не дает.

_________________
даешь высокое напряжение


Вернуться наверх
 
Не в сети
 Заголовок сообщения: Re: Как понять буквенно-цифровые обозначения в данной схеме?
СообщениеДобавлено: Пт янв 17, 2014 18:47:10 
Сверлит текстолит когтями
Аватар пользователя

Карма: 6
Рейтинг сообщений: 23
Зарегистрирован: Пн фев 07, 2011 16:19:33
Сообщений: 1178
Рейтинг сообщения: 0
Отправил на личку.


Вернуться наверх
 
Не в сети
 Заголовок сообщения: Re: Как понять буквенно-цифровые обозначения в данной схеме?
СообщениеДобавлено: Пт янв 17, 2014 18:49:19 
Вымогатель припоя

Карма: -6
Рейтинг сообщений: -47
Зарегистрирован: Чт июн 16, 2011 15:06:10
Сообщений: 507
Откуда: электрощитовая
Рейтинг сообщения: 0
ageeff писал(а):
Отправил на личку.

ОК, получили письмо?

_________________
даешь высокое напряжение


Вернуться наверх
 
Не в сети
 Заголовок сообщения: Re: Как понять буквенно-цифровые обозначения в данной схеме?
СообщениеДобавлено: Пт янв 17, 2014 18:51:18 
Сверлит текстолит когтями
Аватар пользователя

Карма: 6
Рейтинг сообщений: 23
Зарегистрирован: Пн фев 07, 2011 16:19:33
Сообщений: 1178
Рейтинг сообщения: 0
Vova777 писал(а):
ОК, получили письмо?

Да .Поизучаю , отпишусь на мыло.


Вернуться наверх
 
Показать сообщения за:  Сортировать по:  Вернуться наверх
Начать новую тему Ответить на тему  [ Сообщений: 14 ] 

Часовой пояс: UTC + 3 часа


Кто сейчас на форуме

Сейчас этот форум просматривают: нет зарегистрированных пользователей и гости: 43


Вы не можете начинать темы
Вы не можете отвечать на сообщения
Вы не можете редактировать свои сообщения
Вы не можете удалять свои сообщения
Вы не можете добавлять вложения

Найти:
Перейти:  


Powered by phpBB © 2000, 2002, 2005, 2007 phpBB Group
Русская поддержка phpBB
Extended by Karma MOD © 2007—2012 m157y
Extended by Topic Tags MOD © 2012 m157y